
產品特點:
9—19型離心通風機.經改進與國內同類產品相比,具有效率高、噪音較低,性能曲線平坦,高效區較寬的特點。
本風機一般用于鍛;臺爐及高壓強通風,并廣泛用于物料輸送。可適用于輸送空氣及無腐蝕性、不自燃、不含有粘性物質的氣體。輸送介質溫度不超過80。C。介質中所含的塵土及硬質細顆粒不大于150毫克/立方米。
本風機為單吸入式。機座號有NO.4#、4.5#,5#、5.6#、6.3#共五個機號,因版面有限6.3;以上風機的參數不在說明書中出現,敬請諒解。本風機可做成左右旋轉,出風口位置角度可按用戶需要而定,風機的傳動方式為A式和D式兩種。
風機所選用的動率指在特定工況下加上機械損耗應有的安全系數而言,為了防止電機因過載而燒毀,在風機啟動時必須在無載荷的情況下進行,如情況良好,逐步開啟到規定工況為止,在使用中嚴格控制電流不超過電機額定值。
離心風機表:
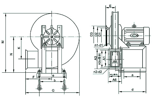
外形及安裝尺寸圖

通風機性能選用表

外形及安裝尺寸表
